ID CP2706125

Teren padure Baneasa Jandarmeriei

Această proprietate nu mai este activă,
te invităm să vizualizezi proprietăți similare

ID CP2706125

500,000 € (negociabil)

Teren de 1,250 mp de vânzare
Baneasa, Bucuresti
1,250 mp

Teren de vânzare în Sector 1 – Locație exclusivistă, ideal pentru locuință! chiar in Padure

Adresă: Str. Jandarmeriei, Sector 1, București

Suprafață: 1.250 mp – intravilan, construibil

Deschidere: 33 ml la strada Jandarmeriei

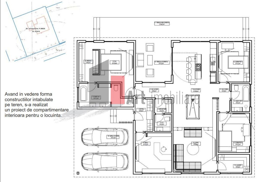
Construcții existente: Două anexe intabulate (194 mp) La acest moment pe teren mai exista fundatia lor.

Teren liber, fără vegetație

Caracteristici urbanistice:

POT: 15% CUT: 0.2 Regim de înălțime permis: P+1

Proiect de compartimentare interioară deja realizat pentru locuință!

Avantaje:

Zonă premium, liniștită, cu acces rapid către DN1, Băneasa și pădurea Băneasa

Ideal pentru construcția unei vile de lux sau reconfigurarea construcțiilor existente

Investiție solidă într-o zonă în plină dezvoltare

Citește mai mult

  • Tip teren
    Construcții
  • Suprafață teren
    1,250 mp
  • Front stradal
    33.0 m
  • Număr fronturi stradale
    1
  • Deschidere la
    Drum principal
  • Distanța față de utilități
    20.0 m
  • Construcție pe teren
    Da
  • Suprafață construită
    194 mp
  • Clasificare
    Intravilan
  • Valoare incidență
    200.0
  • Disponibilitate
    Imediat
  • CUT
    2.0
  • POT (%)
    15.0
  • PUZ Aprobat
    Da
  • Număr etaje clădire
    1

Facilități

Acces auto
Apă
Canalizare
Curent
Gaz
Iluminat stradal
La șosea
Mijloace de transport în comun
Oportunitate de investiții
Străzi asfaltate
Necesare:

Site-ul nu poate funcționa corect fără aceste cookie-uri. Vezi cookie-urile

Statistică:

Strângem statistici anonime despre voi, vizitatorii unici, pentru a vă îmbunătăți experiența dumneavoastră. Vezi cookie-urile

Marketing:

Pentru a ne promova mai eficient serviciile noastre, folosim cookies pentru a vă identifica și a vă oferi proprietăți și servicii personalizate. Vezi cookie-urile

Acest site folosește cookies, află detalii. Alege ce tipuri de cookies dorești să permitem: