ID CP2523591

Ocazie!!!!! Casa Chiajna !!!!!

Această proprietate nu mai este activă,
te invităm să vizualizezi proprietăți similare

ID CP2523591

240,000 €

Casă / Vilă cu 5 camere de vânzare
Dudu
155 mp
2007

Va prezentam o vila in Chiajna-Dudu,langa padure, construita in 2007 pe un teren de 476 mp si care se vinde complet finisata.

Proprietatea este P+1+M, mansarda nefiind amenajata si lasand viitorului proprietar toate optiunile de amenajare.

Casa are toate utilitatile iar confortul termic este asigurat de la o centrala individuala.

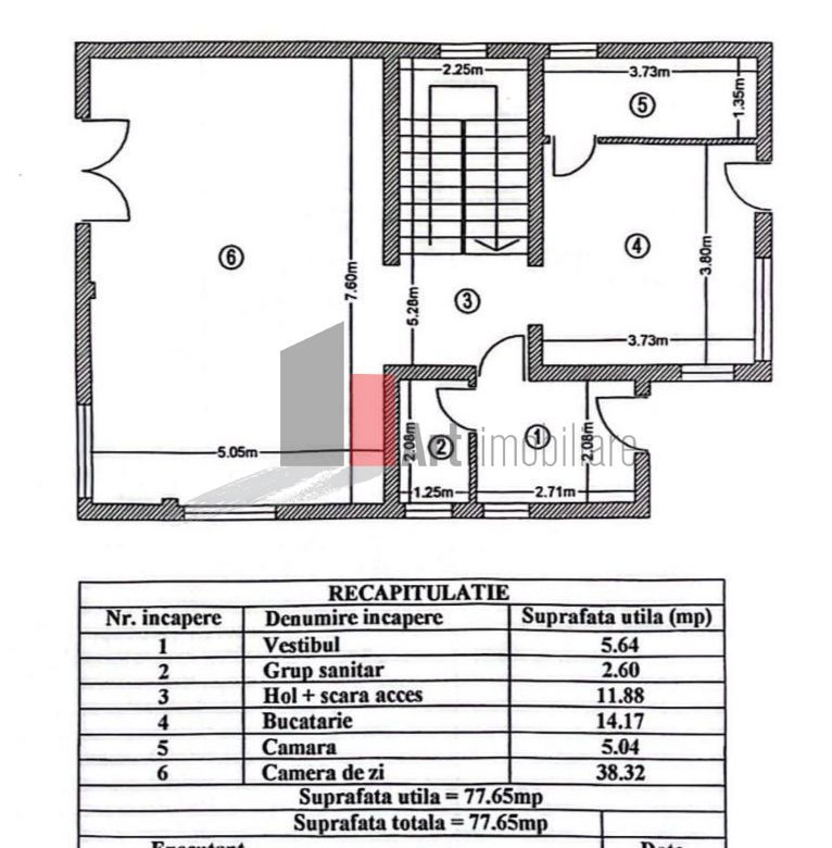
Casa are la parter camera de zi,camara,bucatarie,vestibul,grup sanitar si hol+scara acces .

La etaj are 3 dormitoare,baie,grup sanitar,hol+scara acces si 3 balcoane.

Pentru detalii sau vizinare va stam la dispozitie si la nr. 0771559209

Citește mai mult

  • Număr camere
    5
  • Dormitoare
    4
  • Număr bucătării
    1
  • Număr băi
    2
  • Geam la baie
    Da
  • Număr balcoane
    3
  • Disponibilitate
    Imediat
  • Tip casă
    Individual
  • Stare interior
    Bună
  • Suprafață utilă
    155 mp
  • Suprafață construită
    167 mp
  • Suprafață construită la sol (Amprentă)
    92.0 mp
  • Suprafață teren
    476 mp
  • Suprafață curte
    476 mp
  • Suprafață curte liberă
    384 mp
  • Acoperiș
    Tablă
  • Stadiu construcție
    Finalizată
  • An construcție
    2007
  • Construcție nouă
    Da
  • Reabilitat termic
    Da
  • Număr etaje clădire
    1
  • Are mansardă
    Da
  • Are pod
    Da

Facilități

Aer condiționat
Apă
Apometre
Bucătărie închisă
Bucătărie parțial mobilată
Cabină de duș
Cadă
Canalizare
CATV
Contor electric
Contor gaz
Curent
Curte
Debara
Dressing
Faianță
Ferestre PVC
Gaz
Geamuri termopan
Grădină proprie
Gresie
Iluminat stradal
Internet
Mijloace de transport în comun
Nemobilat
Parchet laminat
Scară interioară
Străzi asfaltate
Supraveghere video
Telefon
Ușă intrare metal
Uși interior MDF
Videointerfon
Vopsea lavabilă
WC Serviciu
Zonă pentru barbeque
Necesare:

Site-ul nu poate funcționa corect fără aceste cookie-uri. Vezi cookie-urile

Statistică:

Strângem statistici anonime despre voi, vizitatorii unici, pentru a vă îmbunătăți experiența dumneavoastră. Vezi cookie-urile

Marketing:

Pentru a ne promova mai eficient serviciile noastre, folosim cookies pentru a vă identifica și a vă oferi proprietăți și servicii personalizate. Vezi cookie-urile

Acest site folosește cookies, află detalii. Alege ce tipuri de cookies dorești să permitem: