ID CP2827039

APARTAMENT 4 CAMERE STEFAN CEL MARE

ID CP2827039

179,900 €

Apartament cu 4 camere de vânzare
Stefan cel Mare, Bucuresti
80 mp
1982

Va prezentam spre vanzare un apartament de 4 camere situat la intersecta

sos. Stefan cel Mare cu str Viitor, construit in anul 1982.

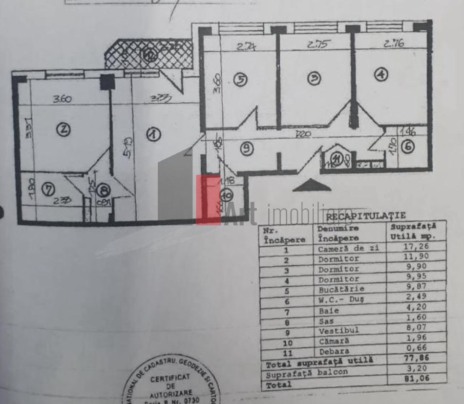
Apartamentul este semidecomandat ,situat intr-un bloc de 10 etaje la etajul 2,

in suprafata de 81 mp utili.

Acest apartament se compune din living , 3 dormitoare, bucatarie mare ,2 bai,

balcon si spatii de depozitare.

Apartamentul este gol si asteapta sa fie renovat dupa preferintelor noilor proprietari.

Pentru vizionare si imformatii suplimentare va rugam sa ne contactati cu incredere.

Citește mai mult

  • Tip apartament
    Apartament
  • Compartimentare
    Semidecomandat
  • Număr camere
    4
  • Dormitoare
    3
  • Număr bucătării
    1
  • Număr băi
    2
  • Etaj
    2
  • Suprafață utilă
    80 mp
  • Suprafață construită
    89 mp
  • Disponibilitate
    Imediat
  • Orientare
    Sud-Vest
  • Confort
    1
  • Stare interior
    Necesită renovare
  • Număr balcoane
    1
  • Imobil
    Bloc de apart.
  • Stadiu construcție
    Finalizată
  • An construcție
    1982
  • Număr etaje clădire
    10

Facilități

Apă
Canalizare
CATV
Curent
Gaz
Iluminat stradal
Internet
Mijloace de transport în comun
Străzi asfaltate
Telefon
Nina Athanasiu
Broker

0722371033


Solicită chiar acum o vizionare
Telefon
Sună acum Solicită vizionare
Necesare:

Site-ul nu poate funcționa corect fără aceste cookie-uri. Vezi cookie-urile

Statistică:

Strângem statistici anonime despre voi, vizitatorii unici, pentru a vă îmbunătăți experiența dumneavoastră. Vezi cookie-urile

Marketing:

Pentru a ne promova mai eficient serviciile noastre, folosim cookies pentru a vă identifica și a vă oferi proprietăți și servicii personalizate. Vezi cookie-urile

Acest site folosește cookies, află detalii. Alege ce tipuri de cookies dorești să permitem: