ID CP2790435

Ap. decomandat 3 camere, Suprafata utila 73 mp, Bdul. Națiunile Unite

ID CP2790435

265,001 €

Apartament cu 3 camere de vânzare
Natiunile Unite, Bucuresti
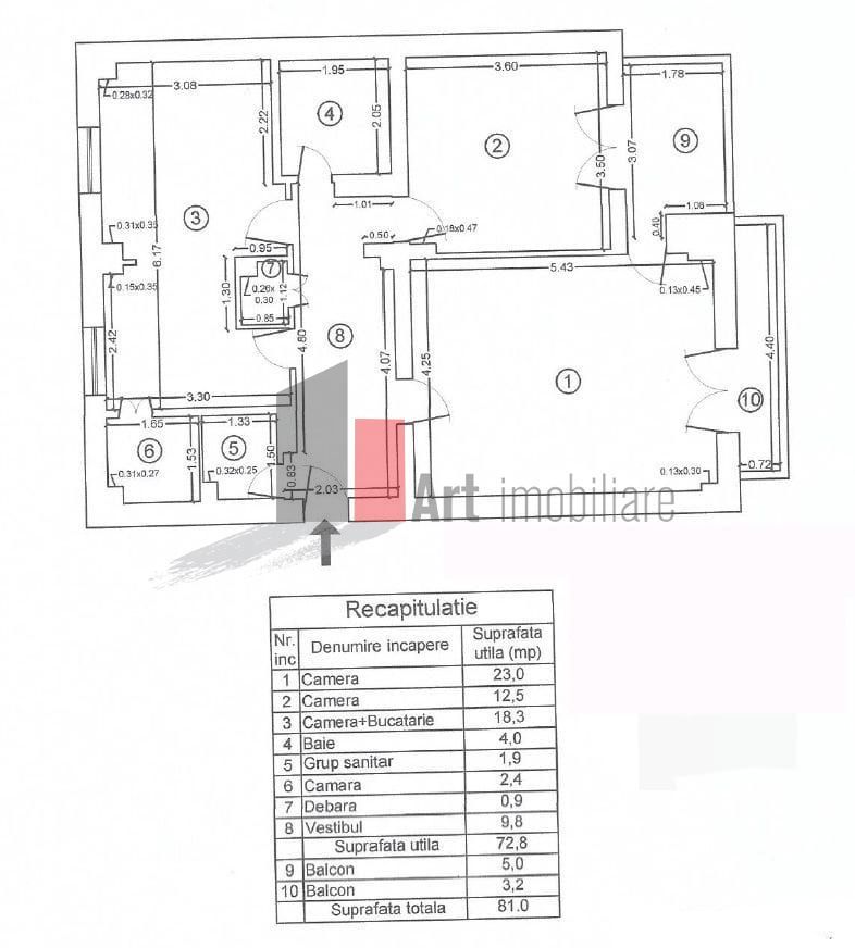
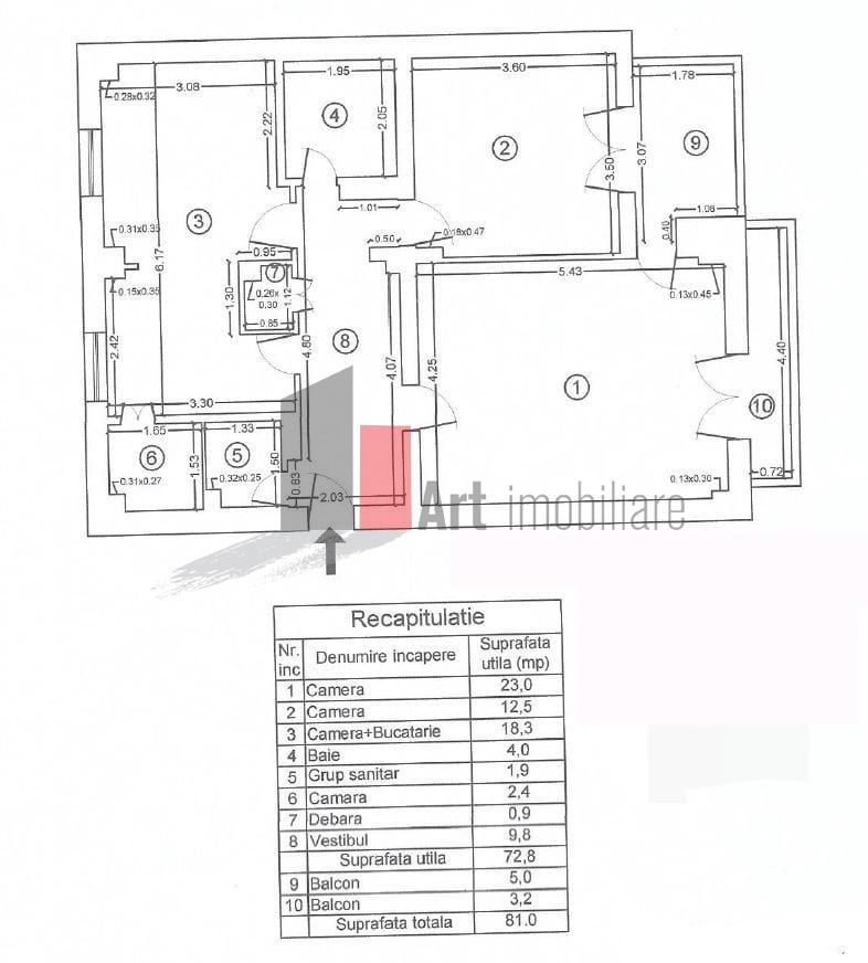
72.8 mp
1995

Dacă vă plac spațiile generoase pe care le puteți amenaja după propria dumneavoastră dorință, acest apartament va fi cu siguranță pe placul dvs.

Situat în centrul capitalei, în imediata apropiere a Palatului Parlamentului, pe Bulevardul Națiunile Unite, la etajul 2/7, apartamentul dispune de:

- Living în suprafață de 23 mp

- Bucătărie deschisă + cameră în suprafață de 18,3 mp

- Cameră în suprafață de 12,5 mp

- 2 grupuri sanitare (baie 4 mp + grup sanitar 1,9 mp)

- 2 balcoane închise

Apartamentul este semi-mobilat cu 2 biblioteci și 2 birouri având mobilă de colecție din lemn masiv și dispune de două spații de depozitare ce se pot amenaja după preferințele dvs.

Comisionul agenției este de 2%+TVA.

Vă așteptăm la vizionare!

Citește mai mult

  • Tip apartament
    Apartament
  • Compartimentare
    Decomandat
  • Număr camere
    3
  • Dormitoare
    2
  • Număr bucătării
    1
  • Număr băi
    2
  • Etaj
    2
  • Suprafață utilă
    72.8 mp
  • Suprafață construită
    86 mp
  • Suprafață totală
    81 mp
  • Disponibilitate
    Imediat
  • Confort
    1
  • Stare interior
    Finisat clasic
  • Număr balcoane
    2
  • Imobil
    Bloc de apart.
  • Stadiu construcție
    Finisat
  • An construcție
    1995
  • Număr etaje clădire
    7

Facilități

Aer condiționat
Apă
Aragaz
Bucătărie deschisă
Calorifere
Canalizare
CATV
Curent
Faianță
Ferestre PVC
Gaz
Iluminat stradal
Internet
Mijloace de transport în comun
Străzi asfaltate
Termoficare
Daniela Schitea - Art Imobiliare
Daniela Schitea
Broker

0775581140


Solicită chiar acum o vizionare
Telefon
Sună acum Solicită vizionare
Necesare:

Site-ul nu poate funcționa corect fără aceste cookie-uri. Vezi cookie-urile

Statistică:

Strângem statistici anonime despre voi, vizitatorii unici, pentru a vă îmbunătăți experiența dumneavoastră. Vezi cookie-urile

Marketing:

Pentru a ne promova mai eficient serviciile noastre, folosim cookies pentru a vă identifica și a vă oferi proprietăți și servicii personalizate. Vezi cookie-urile

Acest site folosește cookies, află detalii. Alege ce tipuri de cookies dorești să permitem: