ID CP1695117

843 e/mp | Vila cu piscina in BAVARIA PARK | 1000 mp teren

Această proprietate nu mai este activă,
te invităm să vizualizezi proprietăți similare

ID CP1695117

299,999 €

Casă / Vilă cu 7 camere de vânzare
Balotesti
390 mp
2021

Va prezentam una dintre cele mai spectaculoase proprietati din BAVARIA PARK.

Proprietatea se adreseaza acelor clienti pretentiosi, premium, pentru care diferentierea este ceea ce conteaza in viata lor, pentru care confortul, designul si armonia spatiului in care vor locui, constituie elemente primordiale in decizia de achizitie. Astfel, discutam cu clientii carora bugetul nu le este elementul cheie al achizitiei, ci modul in care proprietatea raspunde nevoilor lor imobiliare.

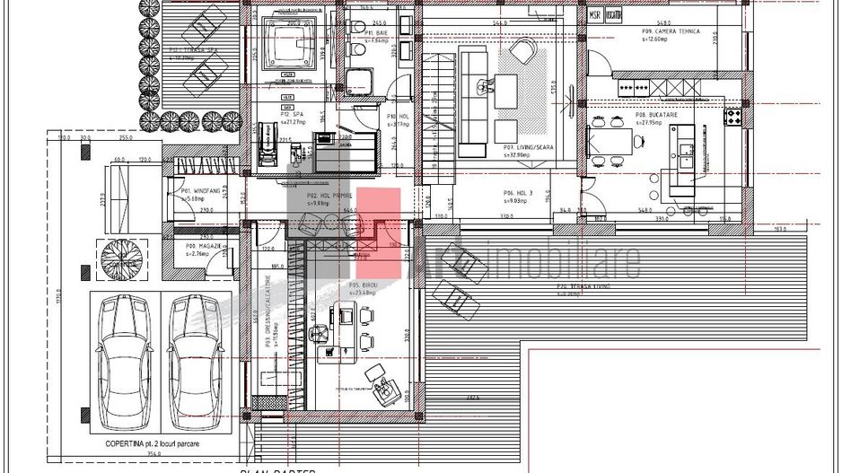
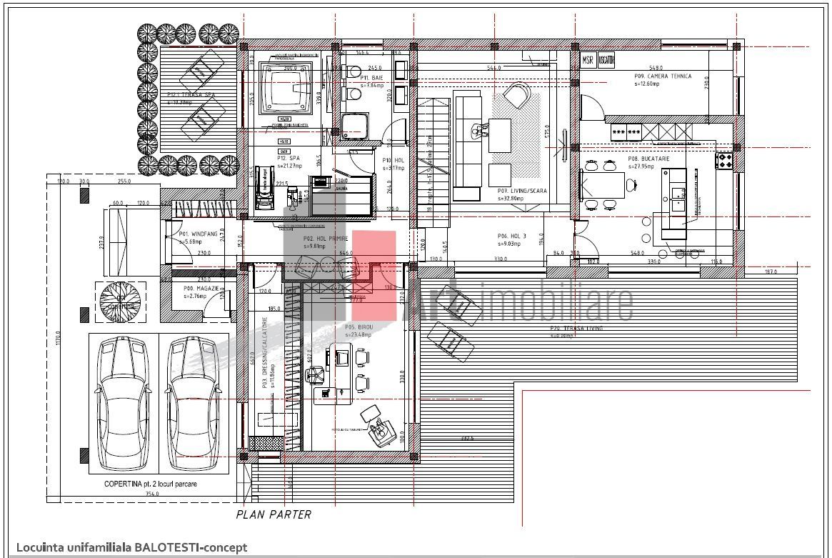
Asadar, vorbim de 3 corpuri de cladire, care se impletesc armonios intr-un spatiu ultra optimizat, atat arhitectural cat si energetic.

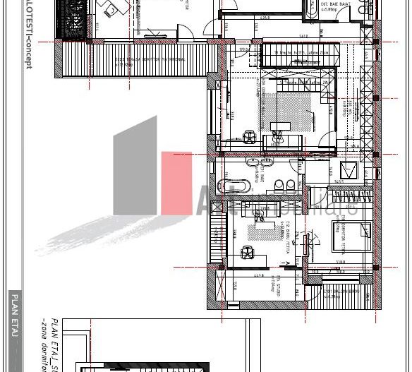
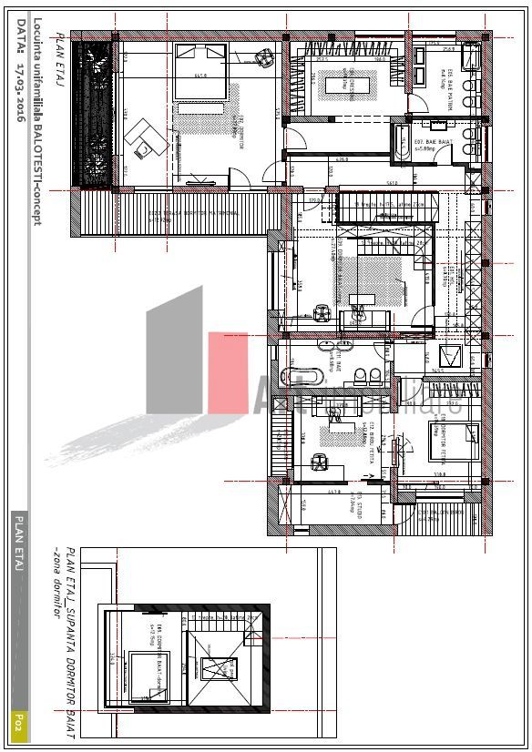
Casa are 420 mp construiti desfasurati pe paerter si etaj.

La parter gasim un hol din care se ramifica diverse spatii cu functionalitati specifice: SPA, bucatarie, living, birou, "calcatorie", baie, spatiu tehnic. Tot pe parter mai sunt doua terase. Una este in fata SPA-ului iar a doua dealungul biroului, bucatariei si livingului. Ea inconjoara piscina exterioara.

In fata casei sunt doua locuri de parcare care au deasupra o copertina.

Va invit la o vizionare!

Citește mai mult

  • Număr camere
    7
  • Număr băi
    4
  • Geam la baie
    Da
  • Număr balcoane
    2
  • Număr terase
    2
  • Număr locuri parcare
    2
  • Disponibilitate
    Imediat
  • Tip casă
    Individual
  • Stare interior
    Semifinisat
  • Suprafață utilă
    390 mp
  • Suprafață construită
    420 mp
  • Suprafață teren
    1,000 mp
  • Stadiu construcție
    La gri
  • An construcție
    2021
  • Construcție nouă
    Da
  • Număr etaje clădire
    1

Facilități

Apă
Canalizare
CATV
Curent
Gaz
Iluminat stradal
Internet
Mijloace de transport în comun
Străzi asfaltate
Telefon
Necesare:

Site-ul nu poate funcționa corect fără aceste cookie-uri. Vezi cookie-urile

Statistică:

Strângem statistici anonime despre voi, vizitatorii unici, pentru a vă îmbunătăți experiența dumneavoastră. Vezi cookie-urile

Marketing:

Pentru a ne promova mai eficient serviciile noastre, folosim cookies pentru a vă identifica și a vă oferi proprietăți și servicii personalizate. Vezi cookie-urile

Acest site folosește cookies, află detalii. Alege ce tipuri de cookies dorești să permitem: