ID CP1929814

Apartament 4 camere Piata Gorjului

Această proprietate nu mai este activă,
te invităm să vizualizezi proprietăți similare

ID CP1929814

120,000 € (negociabil)

Apartament cu 4 camere de vânzare
P-ta Gorjului, Bucuresti
80 mp
1982

Vā oferim spre vânzare un apartament cu 4 camere, decomandat, situat în cartierul Militari, zona Piata Gorjului, în vecinătatea Scolii Gimnaziale 310 Regele Mihsi.

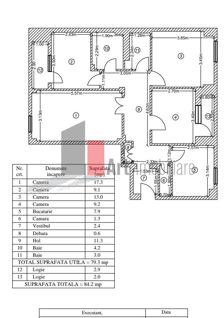
Imobilul se afla intr-un bloc de apartamente, construit în anul 1982, la etajul 1/10, deține o suprafața totala de 84 mp, din care suprafața utila este 80 mp. și 2 balcoane in suprafața de 4 mp.

Locuința este alcatuita dintr-un living, 3 dormitoare ,o bucatarie , 1 baie , 1 WC de serviciu,1 hol, 2 balcoane.

Apartamentul se vinde mobilat si utilat sau gol.

Confortul termic este realizat de la sistemul centralizat de termoficare .

In apropiere se intalnesc puncte farmaceutice, medicale, comerciale, educationale, de divertisment, bancare, parcuri, piete, etc.

Accesul la mijloacele de transport in comun facil: 300m, 5 minute pana la statia de metrou,autobuz,tramvai,troleibuz.

Se accepta toate modalitatile de plata pentru achizitie.

Informațiile tehnice au caracter orientativ, acestea fiind preluate de la proprietari.

Pentru informații suplimentare va rog sa sunați la nr 0771 424 825.

Citește mai mult

  • Tip apartament
    Apartament
  • Compartimentare
    Decomandat
  • Număr camere
    4
  • Dormitoare
    3
  • Număr bucătării
    1
  • Număr băi
    2
  • Etaj
    1
  • Suprafață utilă
    80 mp
  • Suprafață construită
    84 mp
  • Disponibilitate
    Imediat
  • Confort
    1
  • Stare interior
    Finisat clasic
  • Număr balcoane
    2
  • Imobil
    Bloc de apart.
  • Stadiu construcție
    Finalizată
  • An construcție
    1982
  • Reabilitat termic
    Da
  • Număr etaje clădire
    10

Facilități

Aer condiționat
Apă
Apometre
Aragaz
Bucătărie închisă
Bucătărie mobilată
Bucătărie utilată
Cabină de duș
Cadă
Calorifere
Canalizare
CATV
Contor căldură
Contor electric
Curent
Debara
Dressing
Faianță
Ferestre PVC
Frigider
Gaz
Gresie
Hotă
Iluminat stradal
Interfon
Internet
Izolație exterioară
Lift
Mașină de spălat rufe
Mijloace de transport în comun
Mobilat complet
Mochetă
Parchet laminat
Străzi asfaltate
Tapet
Telefon
Termoficare
TV
Ușă intrare metal
Uși interior lemn
Uși interior sticlă
Vopsea lavabilă
WC Serviciu
Wireless
Necesare:

Site-ul nu poate funcționa corect fără aceste cookie-uri. Vezi cookie-urile

Statistică:

Strângem statistici anonime despre voi, vizitatorii unici, pentru a vă îmbunătăți experiența dumneavoastră. Vezi cookie-urile

Marketing:

Pentru a ne promova mai eficient serviciile noastre, folosim cookies pentru a vă identifica și a vă oferi proprietăți și servicii personalizate. Vezi cookie-urile

Acest site folosește cookies, află detalii. Alege ce tipuri de cookies dorești să permitem: