ID CP1715042

Apartament 4 cam, 30 m Calea Victoriei, 3 minute de Piata Victoriei.

Această proprietate nu mai este activă,
te invităm să vizualizezi proprietăți similare

ID CP1715042

215,000 €

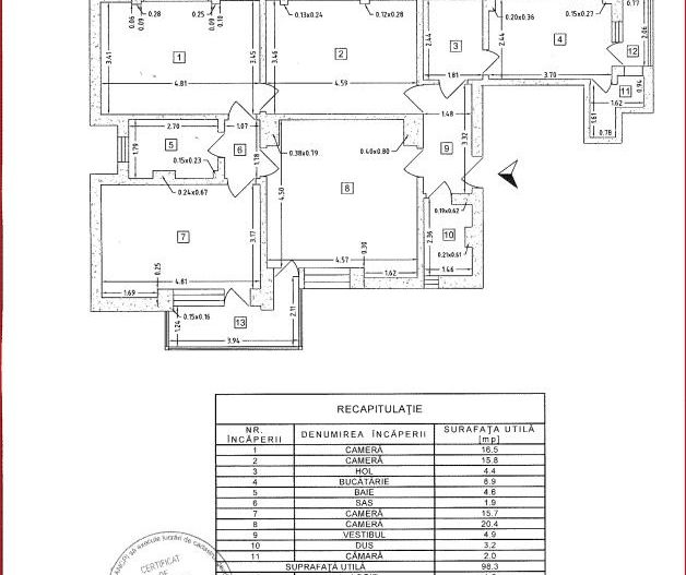
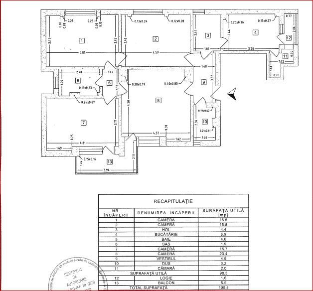
Apartament cu 4 camere de vânzare
Calea Victoriei, Bucuresti
105 mp
1972

Adresa de prestigiu este un punct in plus, fara risc la revanzare!

Se vinde in principal adresa impreuna cu un apartament bine organizat, amplasamentul este exceptional!

Apartament cu 4 camere situat la etajul al doilea din opt.

Circular, 2 bai, Logie si balcon.

Vedere in curtea Muzeului National George Enescu.

Necesita renovare.

0721400402

Citește mai mult

  • Tip apartament
    Apartament
  • Compartimentare
    Circular
  • Număr camere
    4
  • Dormitoare
    3
  • Număr bucătării
    1
  • Număr băi
    2
  • Geam la baie
    Da
  • Etaj
    2
  • Suprafață utilă
    105 mp
  • Suprafață construită
    110 mp
  • Disponibilitate
    Imediat
  • Confort
    1
  • Stare interior
    Finisat clasic
  • Număr balcoane
    1
  • Imobil
    Bloc de apart.
  • Stadiu construcție
    Necesită renovare
  • An construcție
    1972
  • Număr etaje clădire
    8

Facilități

Apă
Canalizare
CATV
Curent
Gaz
Iluminat stradal
Internet
Mijloace de transport în comun
Străzi asfaltate
Telefon
Necesare:

Site-ul nu poate funcționa corect fără aceste cookie-uri. Vezi cookie-urile

Statistică:

Strângem statistici anonime despre voi, vizitatorii unici, pentru a vă îmbunătăți experiența dumneavoastră. Vezi cookie-urile

Marketing:

Pentru a ne promova mai eficient serviciile noastre, folosim cookies pentru a vă identifica și a vă oferi proprietăți și servicii personalizate. Vezi cookie-urile

Acest site folosește cookies, află detalii. Alege ce tipuri de cookies dorești să permitem: