ID CP3016348

APARTAMENT DE 2 CAMERE

Această proprietate nu mai este activă,
te invităm să vizualizezi proprietăți similare

ID CP3016348

149,900 €

Apartament cu 2 camere de vânzare
Amzei, Bucuresti
42 mp
1965

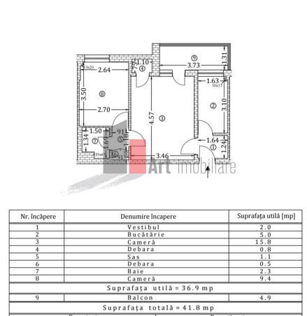
Va prezentam spre vanzare un apartament de 2 camere situat ultracentral, in Piata Amzei din 1965.

Apartamentul este format din living , dormitor, baie , bucatarie,

La apartament au fost schimbate toate instalatiile sanitare si electrice si renovat complet.

Blocul nu are risc seismic sau urgenta.

Pentru mai multe imformatii sau vizionare sunati la 0722 371 033.

Citește mai mult

  • Tip apartament
    Apartament
  • Compartimentare
    Decomandat
  • Număr camere
    2
  • Dormitoare
    1
  • Număr bucătării
    1
  • Număr băi
    1
  • Etaj
    3
  • Suprafață utilă
    42 mp
  • Disponibilitate
    Imediat
  • Confort
    Lux
  • Stare interior
    Finisat modern
  • Număr balcoane
    1
  • Imobil
    Bloc de apart.
  • Stadiu construcție
    Finalizată
  • An construcție
    1965
  • Număr etaje clădire
    7

Facilități

Apă
Canalizare
CATV
Curent
Gaz
Iluminat stradal
Internet
Mijloace de transport în comun
Străzi asfaltate
Telefon
Necesare:

Site-ul nu poate funcționa corect fără aceste cookie-uri. Vezi cookie-urile

Statistică:

Strângem statistici anonime despre voi, vizitatorii unici, pentru a vă îmbunătăți experiența dumneavoastră. Vezi cookie-urile

Marketing:

Pentru a ne promova mai eficient serviciile noastre, folosim cookies pentru a vă identifica și a vă oferi proprietăți și servicii personalizate. Vezi cookie-urile

Acest site folosește cookies, află detalii. Alege ce tipuri de cookies dorești să permitem: